Vente Appartement 2 pièces 37 m2 à Morestel

162 300 €

Détails de l'annonce

Référence 86377668 - Mise à jour le 17/05/2026

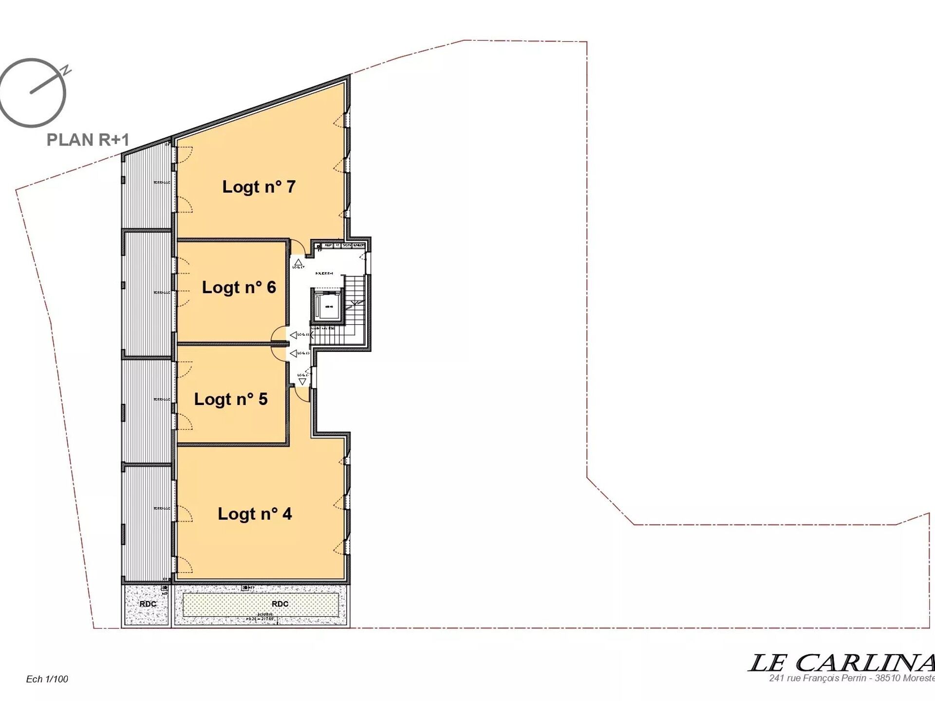
Appartement T2 1er étage 37m² - MORESTEL
A deux pas des commerces, services et école, Arthurimmo Morestel a le plaisir de vous présenter ce très bel appartement T2 au 1er étage avec ascenseur, d'une surface habitable de 37 m² composé d'une chambre, d'une salle de bain avec wc, d'une cuisine ouverte sur le séjour donnant accès au balcon de 20 m².
Une place de parking est vendue avec l'appartement.

La Résidence LE CARLINA est un programme de standing avec ascenseur de 10 logements au cœur de Morestel, avec accès sécurisé.
Composé de deux T2 et de 8 T3 avec de beaux balcons ou terrasses avec jardin privatif au rdc, ce programme propose de belles prestations comme des menuiseries aluminium, volets roulants motorisés, chauffe-eau thermodynamique, carrelage 60x60...

N'hésitez pas à nous consulter pour plus d'information sur ce programme et ses prestations.
Programme en VEFA livraison prévue 2ème semestre 2027.
Assainissement collectif.
10 lots.
Charges prévisionnelles: 1,50€ par m² (estimation).
Mandat n° 7039
Honoraires charge vendeurs.
"Les informations sur les risques auxquels ce bien est exposé sont disponibles sur le site Géorisques : georisques.gouv.fr".

Caractéristiques de ce bien

  • Surface habitable
    37 m²
  • Etage
    1er
  • Nombre de pièces
    2
  • Nombre de chambres
    1
  • Nombre de salles d'eau
    1
  • Nombre de WC
    1
  • Chauffage
    individuel electrique
  • Double vitrage
    Oui
  • Tout-à-l'égout
    Oui
  • Altitude
    214
  • Référence
    7039E

À propos du prix

Acheter ce bien avec Arthurimmo.com Financement
162 300 €

Bilan énergétique

Géorisques

Les informations sur les risques auxquels ce bien est exposé sont disponibles sur le site Géorisques : www.georisques.gouv.fr

Ce bien vous est proposé par

image/svg+xml
25 impasse de la Levaz Basse
38510 Vézeronce-Curtin
4.7
(1423 avis )
Ajouter un commentaire (facultatif)

Annonces similaires

5
Morestel 38510

A deux pas des commerces, services et école, Arthurimmo Morestel a le plaisir de vous présenter ce très bel appartement T2 au 1er étage avec ascenseur, d'une surface habitable de 37 m² composé d'une chambre, d'une salle de bain avec wc, d'une cuisine ouverte sur le séjour donnant accès au balcon de 19 m².
Une place de parking est vendue avec l'appartement.

La Résidence LE CARLINA est un programme de standing avec ascenseur de 10 logements au cœur de Morestel, avec accès sécurisé.
Composé de deux T2 et de 8 T3 avec de beaux balcons ou terrasses avec jardin privatif au rdc, ce programme propose de belles prestations comme des menuiseries aluminium, volets roulants motorisés, chauffe-eau thermodynamique, carrelage 60x60...

N'hésitez pas à nous consulter pour plus d'information sur ce programme et ses prestations.
Programme en VEFA livraison prévue 2ème semestre 2027.
Assainissement collectif.
10 lots.
Charges prévisionnelles: 1,50€ par m² (estimation).
Mandat n° 7039
Honoraires charge vendeurs.
"Les informations sur les risques auxquels ce bien est exposé sont disponibles sur le site Géorisques : georisques.gouv.fr".

Soyez le premier informé !

Recevez en temps réel les annonces correspondant à votre recherche.